Słoneczne Wzgórze +
Aktualności | Partnerzy | Posesja Plażowa - apartamenty na sprzedaż nad morzem w Grzybowie
+48 725 600 500 +48 509 474 471

Szanowni Państwo,
W związku z faktem, iż oferta SŁONECZNE WZGÓRZE nieuchronnie dobiega końca, chcieliśmy poinformować, że wszystkie domy, które zaznaczone są kolorem zielonym podlegają rezerwacji tylko po indywidualnych uzgodnieniach z właścicielami spółki.
Dziękujemy jednocześnie za bardzo duże zainteresowanie naszą ofertą - to najlepiej obrazuje atrakcyjność oferty SŁONECZNE WZGÓRZE.

Jesteś tutaj: Aktualności / Zdjęcia z budowy - 2 Maj 2018

Słoneczne wzgórze - aktualności

Dom nr 105 – gotowy do zamieszkania

21.01.2025 r.

Dom nr 105 – gotowy do zamieszkania

Na sprzedaż dom nr 105, starannie wykończony wewnątrz, gotowy do zamieszkania. Na wyposażeniu znajduje się ogrzewanie podłogowe oraz piec gazowy Buderus Logamax GB 72. Dwie w pełni urządzone łazienki.

Zapytaj o korzystne rozłożenie wpłat.

Poznaj szczegóły wykończenia i odwiedź teren osiedla, aby zobaczyć nieruchomość na żywo!

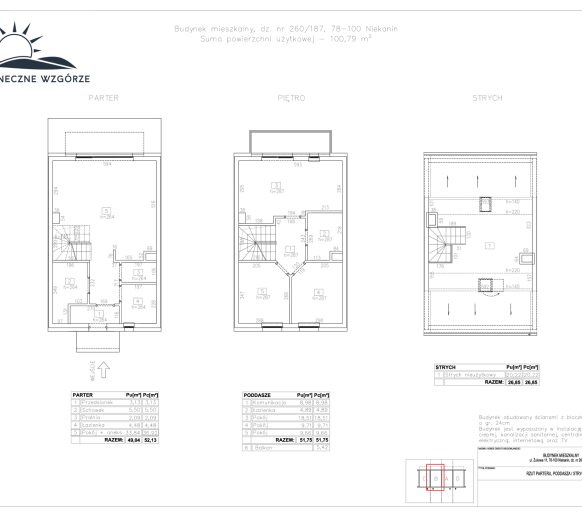
Powierzchnia całkowita: 121,01 m²

Rozkład pomieszczeń:
Parter (49,04 m²):

  1. Przedsionek: 3,13 m²
  2. Schowek: 5,50 m²
  3. Pralnia: 2,09 m²
  4. Łazienka: 4,48 m²
  5. Pokój z aneksem: 33,84 m²

Poddasze (51,75 m²):

  1. Komunikacja: 8,98 m²
  2. Łazienka: 4,89 m²
  3. Pokój: 18,51 m²
  4. Pokój: 9,71 m²
  5. Pokój: 9,66 m²
    Strych (20,22 m²)

Zapraszamy do odwiedzin i kontaktu.

W dniach 28.01-06.02 br biuro będzie nieczynne.
Pozostajemy do dyspozycji pod nr tel.: 725 600 500
lub email: biuro@osiedelsw.pl
Za utrudnienia przepraszamy
Prezentacja Video